2.4.3.     Помещения для содержания лошадей

Коневодческие предприятия по назначению подразделяются на   племенные товарные   и   рабочие.  

Структура и размеры коневодческих ферм определяются природно-климатическими особенностями региона и в первую очередь кормовой базы (естественные и/или культурные пастбища, возможность заготовки зерновых и грубых кормов), см. Справочник: таблица 3.1.3.3, таблица 3.1.3.15 ).

Коневодческие предприятия располагают вдали от проезжих дорог и перерабатывающих предприятий, с учетом обеспеченности кормами, водой, электроэнергией, теплом, подъездными путями. При выборе места необходимо учитывать нормативы зооветеринарных разрывов и санитарных разрывов (см. Справочник: таблица 3.1.3.1   и   таблица 3.1.3.2 ).

Место застройки   следует выбирать сухое с низким уровнем грунтовых вод. Требования к постройкам для лошадей регламентированы нормами технологического проектирования коневодческих предприятий (НТП – АПК 1.10.04.001 - 00), Справочник: раздел 3.1.3.

Все коневодческие постройки делят на основные   производственные  , подсобные , складские (хранилища кормов и подстилки, площадки для хранения навоза, площадки для транспортных средств) и вспомогательные здания (администрация, бытовые).

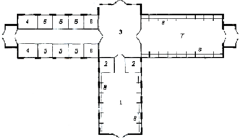
В зависимости от рельефа местности и направленности коневодства конюшни строят одноэтажные, прямоугольной формы (рис. 2.4.3.1).


 

Рис. 2.4.3.1.   Конюшня на 12 кобыл:

1- зал для кобыл; 2- денники для выжеребки; 3- случной манеж; 4 - денники для жеребцов; 5 - денники для тренируемого молодняка; 6 - подсобные помещения; 7 - зал для группового содержания молодняка (разделяется переносными перегородками для половозрастных групп); 8 - пристенные кормушки

При строительстве подбирают строительные материалы с высоким коэффициентом термического сопротивления, способствующие обеспечению оптимального микроклимата (см. Справочник: таблица 3.1.3.12 ).

Крышу следует строить из материала с низкой теплопроводностью, непроницаемого для воды. Наиболее важный элемент –   пол, который должен обладать низкой теплопроводностью, прочностью, и быть сухим, влагонепроницаемым и нескользким.

В целях сохранения тепла в помещении,   ворота   оборудуют тамбурами. Используют приточно-вытяжную вентиляцию с естественным побуждением.

Конюшни (при денниковом и зальном содержании) должны иметь   паддоки .

В конюшнях для взрослых лошадей применяется двухрядное расположение денников и стойл, объединяемых общим кормонавозным проходом (рис. 2.4.3.2). В центре конюшни помещают манеж для выводки лошадей и запряжки.


 

Рис. 2.4.3.2.   Двухрядное расположение денников в конюшне

www.rieslingstables.com

Лошадей содержат в стойлах на привязи (недоуздке), а в денниках - без привязи. Конюшни для молодняка разделяют на секции, из каждой секции устраивают выход наружу, в паддок. Нормы площадей и размеры технологических элементов помещений для содержания лошадей приведены в Справочнике: таблица 3.1.3.4   и   таблица 3.1.3.6.

В денниках устраивают кормушки только для концентрированного корма, индивидуальные поилки по одной на денник. При групповом содержании в секции делают групповые кормушки в виде корыта и водопойные корыта (см. Справочник: таблица 3.1.3.5 ).

Навоз из конюшни убирают с помощью монорельса вручную или скребковыми транспортерами.

Помещения и оборудование чистят вручную: денники, стойла, секции. проходы (коридоры) – 2 раза в сутки; кормушки, поилки – постоянно. Навоз вывозят конной повозкой на расстояние до 150 м или автомобильным транспортом ежедневно.

Используют подстилочный материал, непораженный плесенью, обладающий высокой гигроскопичностью и влагоемкостью. Рекомендуемые виды подстилки и нормы потребности приведены в Справочнике: таблица 3.1.3.8  .

При ежедневной уборке секции добавляют по 5-6 кг соломы на голову. Годовая потребность в подстилке определяется исходя и суточных норм и продолжительности стойлового содержания. Толщина подстилочного слоя составляет 0,3-0,5 м (рис. 2.4.3.3).


 

Рис. 2.4.3.3.  Распределение подстилки
www.drystall.com


При табунном содержании для формирования табунов, взвешивания, проведения зооветеринарных мероприятий используют баз-раскол. Последний проектируется эллипсовидной формы и представляет собой расположенные последовательное приемное отделение с расколом, распределительное отделение и окружающие его групповые секции (рис. 2.4.3.4).


 

Рис. 2.4.3.4.   Баз-раскол:

1 – главное (приемное отделение) база; 2 – коридор; 3 – раскольная клетка; 4 – распределительный баз; 5 - секции база; 6 - ворота


В приемном отделении оборудуется раскольная «воронка», ведущая в раскольную клетку с двумя сообщающимися отделениями. После прохождения раскольной клетки лошадь попадает в распределительное отделение, откуда направляется в групповую секцию. Одна из секций устраивается проходной (с наружными воротами) для эвакуации лошадей из раскола. Размер длина 12-15 м, ширина 10 м. Высота изгороди не менее 1,8 м.

При использовании раскола для проведения   маллеинизации   распределительное отделение и групповые секции переоборудуются в баз, устраивается коновязь.

В теплое время года, в сочетании с конюшенным содержанием, лошадей, по определенным возрастным группам, выпасают на пастбищах (левадах).

Левады – огороженные участки искусственных пастбищ (с многолетними травами), используемые для летнего группового содержания племенных лошадей. Площадь левад определяется из расчета в среднем 0,3-1,0 га на голову зависимости от климатических условий и качества травостоя:

Левады огораживают забором на прочных железобетонных столбах. При обильном травостое левады разгораживаются на мелкие участки. Левады оборудуются прогонами, воротами и поилками, в соответствии с нормативами по проектированию. Выпасают в постоянно огороженных или выделяемых переносными изгородями загонах. Преимущества искусственных пастбищ по сравнению с естественными, заключаются в их высокой урожайности, равномерности распределения травостоя, а также возможности регулирования его состава. Здесь оборудуют облегченные крытые стойла для отдыха лошадей (рис. 2.4.3.5).


 

Рис. 2.4.3.5.  Крытые стойла для лошадей, используемые на левадах
www.artilleryridge.com

Площадь земельных угодий коневодческого предприятия должна также обеспечивать полную утилизацию всего получаемого навоза, исключая попадание его на окружающую территорию и в водоемы (см. Справочник: таблица 3.1.3.10   и   таблица 3.1.3.11 ). Вдоль границ территории создают зеленую зону из древесных насаждений.


2.4.3.     Структура коневодческих предприятий